top of page
Nord 001 - Oslo.png
Nord 001 - Oslo.png

Nord 001 - Oslo

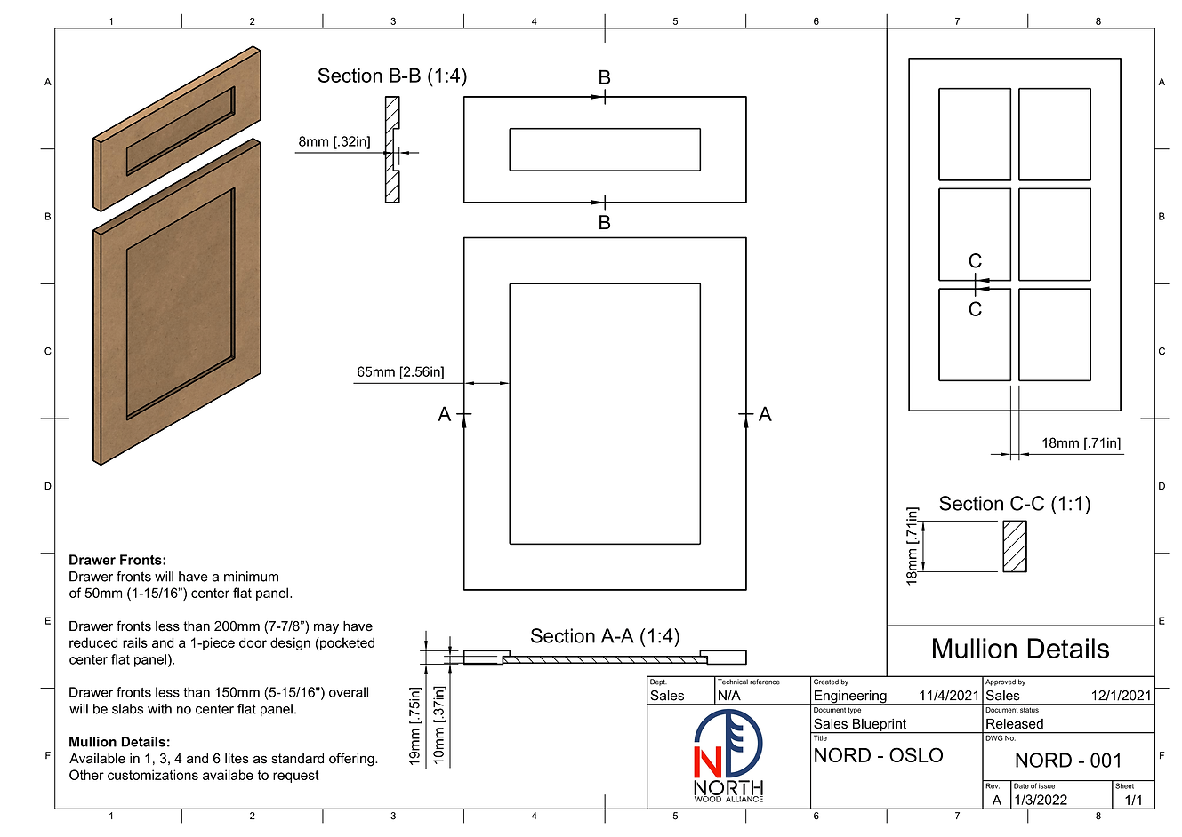
The Standard Shaker Door is a timeless classic that adds a touch of elegance to any room. 

Nord 001 - Oslo v7-1.png
bottom of page